SOLD!
Another fabulous renovation completed by J Stevens construction! A BBB member. This home sure will not disappoint.. there’s a lucky home buyer out there for this one to enjoy for years to come…
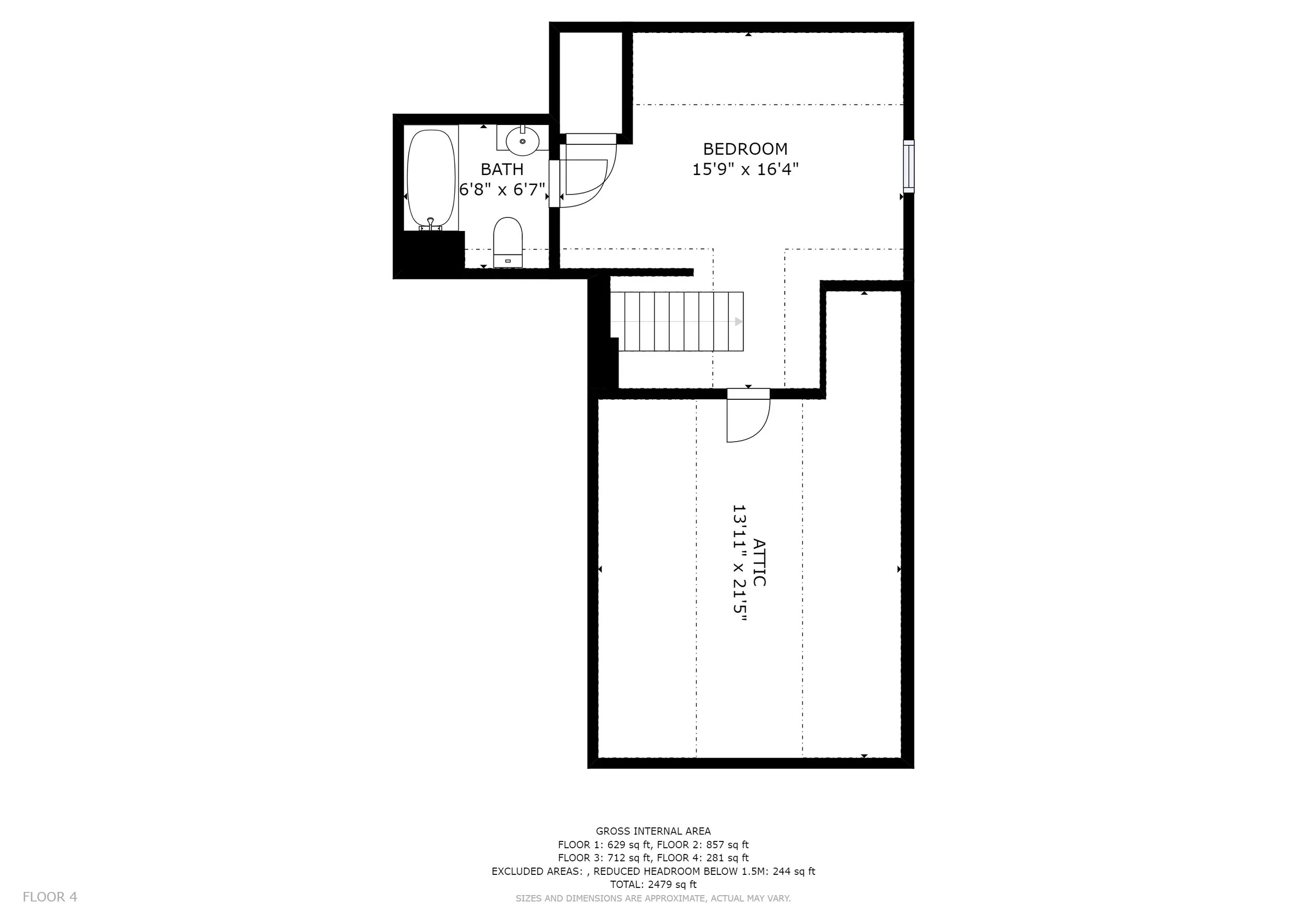
4 bedroom 2.5 bath tutor with a 1 car garage built in the 1920s; Has lots of old-world charm but with all the new bells and whistles in the wonderful neighborhood of Lindamere in N Wilmington.
Virtual Tour
Photos
